P4 Porte de Pantin

Intégrer une logistique zéro particule dans Paris

p4-syvil-architectures-2560x.jpg
P4 appartient à une nouvelle génération d’immobilier logistique - l’espace urbain de distribution - dont la vocation est de constituer un nouveau maillon entre les grandes plates-formes logistiques et le destinataire final. © Takuji Shimmura
Commanditaire Sogaris
Date Livré 2020
Lieu Porte de Pantin, Paris
Mission Projet lauréat AAP Logistique urbaine durable complète (Ville de Paris) Syvil mandataire de la maîtrise d’oeuvre
Budget 1,8 M €
Partenaires Mizrahi BET TCE, FM Logistics, Ecolotrans, Freshrelay, La Ruche qui dit oui. Entreprise: NBA
Programme Messagerie logistique mutualisée à zéro émission de particules + commerce
Surface 864 m² SDP
Distinctions Prix spécial du jury à l'Equerre d'Argent 2021 catégorie "Première Oeuvre" - Lauréat MIPIM Award 2021 catégorie "Best industrial and logistics development"

Si la logistique a déjà commencé à regagner la ville, notamment par l’occupation de  sous-sols délaissés, P4 est la première occurrence construite des « espaces urbains de distribution », nouveaux maillons destinés à optimiser les chaînes de livraison d’un point de vue environnemental.

Proposition lauréate en janvier 2017 de l’appel à projet « Logistique urbaine durable » lancé par la Ville de Paris, cet entrepôt frigorifique bénéficie d’une convention temporaire du domaine public de 12 ans. Anticipant dès lors un cycle de vie réduit, le bâtiment est pensé comme un assemblage d’éléments pouvant être réutilisés à l’issue de cette convention. Se jouant de l’ombre du périphérique sous lequel il se glisse, l’édifice est pensé comme une lanterne qui s’infléchit au gré des géométries du site. Bien que temporaire, cette architecture ambitionne de donner ses lettres de noblesse au programme logistique.

Dès l’origine, l’idée est de faire du bâtiment un objet de curiosité, capable de donner à voir la filière logistique urbaine ; à l’instar de la formule « Making things public » de Bruno Latour et Peter Weibel. Rendre visibles les coulisses de la ville, c’est montrer aux citoyens qu’il n’existe pas de logistique urbaine magique comme on a pu le dire de la fée électricité, mais que la distribution urbaine suppose bien une réalité matérielle qui se traduit par la présence d’infrastructures physiques au plus près des villes.

Côté Pantin, les véhicules sont mis en scène. Ainsi le piéton peut-il apercevoir l’arrivée et le départ des marchandises. En passant sous le pont du périphérique, il longera la cour des triporteurs. Côté Paris, au droit de l’arrêt de bus, une vitrine confère au bâtiment une transparence et ouvre une vue sur le ballet des marchandises.

Telle une lanterne, le bâtiment est une nouvelle présence sécurisante qui vient requalifier l’espace public entre Paris et Pantin. Il est un lieu au service du quartier de par sa fonction logistique mais aussi grâce à la présence d’un commerce d’angle. Ce dernier assure également une fonction de péréquation économique au sein de l’opération.

porte-de-pantin-annees-1970-2560x.jpg
La Porte de Pantin photographiée par Roger Henrard en 1967.
p4-syvil-architectures-coupe-axo-assemblage-2-2560x.png
P4 occupe un espace délaissé sous le boulevard périphérique parisien.
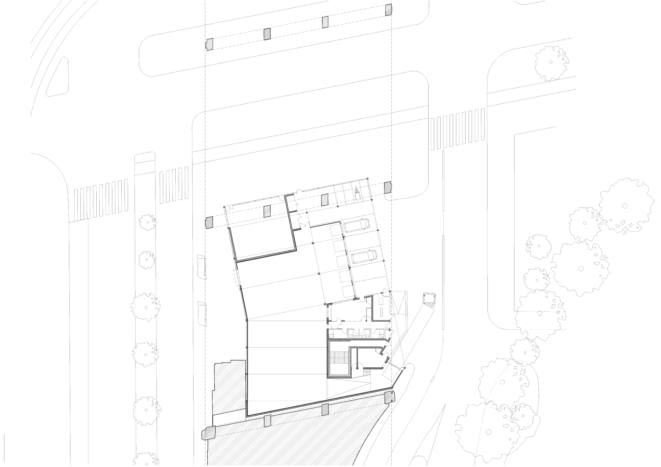
p4-syvil-architectures-plan-300e-2560x.png
Le rectangle de l’entrepôt traditionnel vient simplement se briser pour s’adapter aux géométries du site.